Een kmo unit bij ons ?

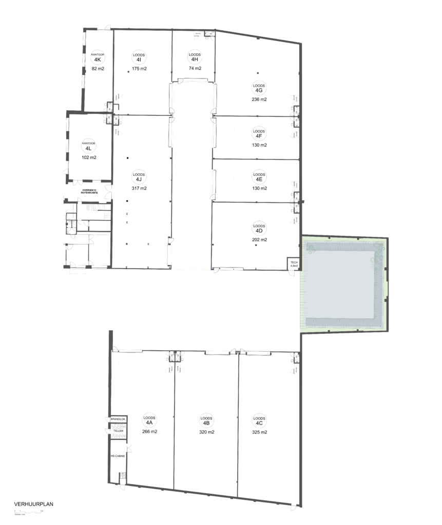
Vanaf oktober hebben we 9 polyvalente ruimtes te huur in het Spiegelpark. 

Die ruimtes kunnen zowel als kmo-unit of als loods ingenomen worden. De ruimtes worden op dit moment afgewerkt, maar een voorbereidend gesprek om te kijken wat de mogelijkheden zijn, kan al zeker. Je kan hieronder het grondplan van de nieuwe vleugel al raadplegen. 

Neem contact op en dan kijken we wat we voor elkaar kunnen betekenen. 

Graag tot snel!

 

Neem contact op

Grondplan nieuwe vleugel